Immer in Ihrer Nähe:
DIE IBFELDT BÜROS
deutschlandweit.

Kundenmeinungen
So urteilen unsere Kunden!
IMMOBILIEN-SUCHE
Alle unsere aktuellen Immobilien im Überblick.
» zur Suche
zurück
08349 Johanngeorgenstadt
Anfrage sendenNur für den Urlaub oder für immer - Wohnung im Erzgebirge

Daten
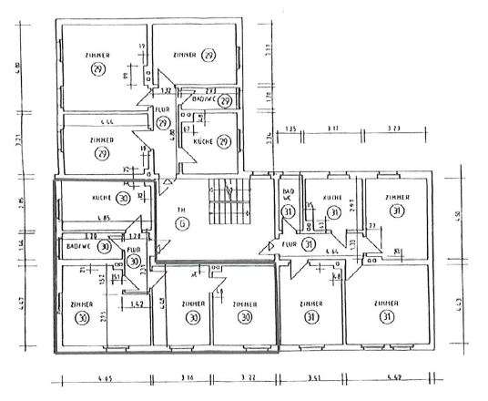
Größe: 69 qm, 3 Zimmer, Einbauküche, Preis: 17500 €, ProvisionsfreiEnergie-Ausweis:
Wesentlicher Energieträger:Bei der Immobilie handelt es sich um eine als Ferienwohnung genutzte Eigentumswohnung im 2. OG eines um 1953 erbauten, vollunterkellerten Mehrfamilienhauses. 1998 sind umfassende Sanierungsarbeiten erfolgt. Die Wohnfläche beträgt ca. 70 m² und verteilt sich auf 3 Zimmer, einen Flur, ein Bad und eine Küche. Zur Wohnung gehört ebenfalls ein Kellerraum. Die Beheizung erfolgt über Fernwärme.
Johanngeorgenstadt liegt im sächsischen Erzgebirgskreis. Die Stadt mit langer Bergbautradition liegt unmittelbar an der tschechischen Grenze, ca. 50 km südlich von Zwickau und etwa 65 km östlich von Plauen entfernt. Der Ort bietet sich an als Ausgangspunkt für ausgedehnte Wander-, Fahrrad- und Skitouren in die malerische Umgebung. Johanngeorgenstadt verfügt über einen Regionalbahnhof mit einer Anbindung nach Zwickau. Die Autobahn A 72 (Chemnitz – Hof) ist in etwa 45 km erreichbar. Einkaufsmöglichkeiten für den täglichen Bedarf, Ärzte, Schulen und Kindergärten sind im Ort vorhanden.
Die Immobilie wird im Rahmen einer Zwangsversteigerung angeboten.
Der im Gutachten festgestellte Verkehrswert beläuft sich auf 35.000 €. Ein Erwerb ist im Versteigerungsverfahren vorbehaltlich höherer Gebote voraussichtlich ab 17.500 € provisionsfrei möglich.
Für Fragen rund um das Thema Zwangsversteigerung stehe ich Ihnen telefonisch unter 03329-690 28 15 jederzeit gerne zur Verfügung.
Wir möchten Sie ausdrücklich darauf hinweisen, dass alle Informationen zu diesem Objekt von dritter Hand eingeholt wurden und das Immobilienbüro Feldt keinerlei Haftung für die Richtigkeit und Vollständigkeit der Angaben übernehmen kann.
Hinweis: Bei einer Zwangsversteigerung entfällt die Pflicht zur Vorlage eines Energieausweises nach § 16 EnEV.
Über 200 weitere Immobilienangebote finden Sie auf unserer Internetseite www.IBFeldt.de!
Kontakt
Anfrage senden Drucken
Fr. Johanna Pabst
Tel. +49 3329 690280
Fax +49 3329 6902819
Potsdamer Allee 127
14532 Stahnsdorf


