Immer in Ihrer Nähe:
DIE IBFELDT BÜROS
deutschlandweit.

Kundenmeinungen
So urteilen unsere Kunden!
IMMOBILIEN-SUCHE
Alle unsere aktuellen Immobilien im Überblick.
» zur Suche
zurück
37586 Dassel
Anfrage sendenGemütliches Ein- bis Zweifamilienhaus samt Anbau und großem Grundstück

Daten
Größe: 225 qm, Grundstück: 1250 qm, 11 Zimmer, Preis: 119000 €, Provision: 4,17% inkl. MwStEnergie-Ausweis:
Erstellungsdatum:Baujahr: 1900
Wesentlicher Energieträger: Erdgas
Endenergiekennwert: 152,7 kWh/(m²*a)
Bei dieser Immobilie handelt es sich um freistehendes Ein- bis Zweifamilienhaus mit einer ganzen Menge Platz zum Wohnen und einem sehr großen Grundstück.
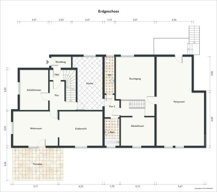
Das Hauptgebäude unterteilt sich auf zwei Vollgeschosse, ist vollständig unterkellert und verfügt über einen Dachboden, welcher zusätzlich zum Keller weiteren Stauraum bietet.
Durch die Raumaufteilung des Erd- und Obergeschosses, sowie durch das gesonderte Treppenhaus lassen sich beide Stockwerke, als in sich abgeschlossene Wohneinheiten, unabhängig voneinander nutzen.
Das Erdgeschoss weist hierbei einen modernisierten Standard auf, während im Obergeschoss mehrere Renovierungsarbeiten nötig wären.
Der Keller ist nicht zu Wohnzwecken ausgebaut und fungiert, abgesehen vom Heizungsraum, der Waschküche und Werkstatt, in erster Linie als Lagerraum.
Neben dem genannten Hauptgebäude gehört zu der Immobilie des Weiteren der Anbau, welcher direkt mit dem Hauptgebäude verbunden und sich durch dieses direkt begehen lässt.
Das Nebengebäude verfügt dabei über ein Kellergeschoss und ein Erdgeschoss.
Im Erdgeschoss wurde ein großer Partyraum mit insgesamt knapp 44m² Wohnfläche bereits vollständig zu Wohnzwecken ausgebaut. Auch ein weiteres Badezimmer sollte neben dem besagten Partyraum noch eingebaut werden. Allerdings wurde dieses Vorhaben aufgrund des Verkaufs vorerst auf Eis gelegt. Somit wird das Nebengebäude, abgesehen von dem besagten Partyraum, ausschließlich als Nutzfläche berücksichtigt.
Ebenfalls positiv hervorzuheben ist das Grundstück, welches mit einer Fläche von insgesamt 1250m² daherkommt. Der Großteil der Fläche entfällt dabei auf den Garten. Dieser ist durch Hecke, welche entlang der Grundstücksgrenze verläuft, auch nicht von der Straße aus einsehbar. Dazu bietet die erhöhte Terrasse, die Sie über das Wohnzimmer des Erdgeschosses begehen können, einen tollen Überblick über die gesamte Gartenfläche.
Aktuell bestehen keine Miet- oder Pachtverträge, da die Immobilie noch von dem Eigentümer bewohnt wird.
Dassel ist eine Stadt im südlichen Niedersachsen und gehört zum Landkreis Northeim. Sie liegt am westlichen Rand des Sollings, einem Mittelgebirge, das die Region landschaftlich prägt. Die Stadt befindet sich in einer eher ländlich geprägten Umgebung, ist aber verkehrstechnisch gut an größere Städte wie Northeim, Einbeck und Göttingen angebunden.
Dassel liegt abseits großer Autobahnen, ist aber über die Bundesstraße B241 erreichbar, die eine Verbindung zu Northeim und Uslar herstellt. Die nächstgelegene Autobahn ist die A7, die etwa 20 km östlich verläuft und über die Anschlussstellen Northeim-Nord oder Northeim-West erreicht werden kann.
Eine direkte Bahnanbindung besitzt Dassel nicht mehr, jedoch ist der nächste Bahnhof in Einbeck oder Northeim gelegen, von wo aus Anschlüsse an das regionale und überregionale Bahnnetz bestehen. Der öffentliche Nahverkehr wird durch Buslinien abgedeckt, die eine Verbindung zu umliegenden Orten gewährleisten.
Die Wirtschaft in Dassel ist von kleineren und mittelständischen Unternehmen geprägt, insbesondere im Handwerks- und Dienstleistungssektor. Zudem gibt es landwirtschaftliche Betriebe und einige produzierende Unternehmen. Große Einkaufszentren gibt es nicht, jedoch sind Supermärkte, Bäckereien und kleinere Einzelhandelsgeschäfte für den täglichen Bedarf vorhanden.
Dassel verfügt über mehrere Grundschulen sowie eine Oberschule. Weiterführende Schulen wie Gymnasien sind in Einbeck oder Northeim zu finden. Auch eine Volkshochschule bietet Kurse für die Erwachsenenbildung an.
Die medizinische Versorgung wird durch Hausärzte, Fachärzte und Apotheken sichergestellt. Krankenhäuser befinden sich in Einbeck und Northeim.
Insgesamt ist Dassel eine ruhige, gut erschlossene Kleinstadt mit einer soliden Infrastruktur, die sich insbesondere für Familien und Naturliebhaber eignet.
Der Erwerb dieser Immobilie ist provisionsfrei im Rahmen einer Zwangsversteigerung im zuständigen Amtsgericht möglich. Nähere Auskünfte und detaillierte Unterlagen sind kostenfrei bei dem vom Gläubiger beauftragten Immobilienbüro Feldt erhältlich.
Hinweis: Alle Angaben basieren auf uns von dritter Seite überlassenen Unterlagen. Eine Gewährleistung für Richtigkeit und Vollständigkeit können wir nicht übernehmen. Zur Verfügung gestellte Grundrisse sind unter Umständen nicht maßstabsgerecht und dienen lediglich der Veranschaulichung. Bei einer Zwangsversteigerung entfällt die Vorlage eines Energieausweises nach § 16 EnEV.
Weitere interessante Immobilienangebote finden Sie auf unserer Internetseite www.ibfeldt.de!
Der Erwerb dieser Immobilie ist provisionsfrei im Rahmen einer Zwangsversteigerung im zuständigen Amtsgericht möglich. Nähere Auskünfte und detaillierte Unterlagen sind kostenfrei bei dem vom Gläubiger beauftragten Immobilienbüro Feldt erhältlich.
Bei Interesse an einem Erwerb prüfen wir für Sie gern auch die Möglichkeit eines freihändigen Kaufes außerhalb der Zwangsversteigerung.
Hinweis: Alle Angaben basieren auf uns von dritter Seite überlassenen Unterlagen. Eine Gewährleistung für Richtigkeit und Vollständigkeit können wir nicht übernehmen. Zur Verfügung gestellte Grundrisse sind unter Umständen nicht maßstabsgerecht und dienen lediglich der Veranschaulichung. Bei einer Zwangsversteigerung entfällt die Vorlage eines Energieausweises nach § 16 EnEV.
Weitere interessante Immobilienangebote finden Sie auf unserer Internetseite www.ibfeldt.de!
IMMOBILIENBÜRO FELDT HANNOVER GMBH
Mackenser Straße 30 / 30559 Hannover
Tel. 0511-8765060 / Fax 0511-87650629 / Mail hannover@ibfeldt.de / www.IBFeldt.de
Kontakt
Anfrage senden Drucken
Hr. Farin Gerlach
Tel. +49 511 8765060
Fax +49 511 16590499
Großer Hillen 26
30559 Hannover






