Immer in Ihrer Nähe:
DIE IBFELDT BÜROS
deutschlandweit.


Kundenmeinungen
So urteilen unsere Kunden!

IMMOBILIEN-SUCHE
Alle unsere aktuellen Immobilien im Überblick.
» zur Suche

Daten

Größe: 297 qm, Grundstück: 1140 qm, 10 Zimmer, Preis: 134900 €, Provision: 3,57% inkl. Mwst.

Energie-Ausweis:

Erstellungsdatum:
Baujahr: 1900
Wesentlicher Energieträger: Erdgas
Endenergiekennwert: 217,1 kWh/(m²*a)


Bei diesem Objekt handelt es sich um ein Renovierungsbedürftiges Mehrfamilienhaus mit zusätzlicher Gewerbeeinheit, Garage und großzügigen Grundstück.

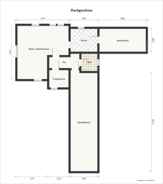
Das Gebäude wurde um 1900 als freistehendes Mehrfamilienhaus erbaut und verfügt über 2 Vollgeschosse, ein ausgebautes Dachgeschoss und ist teilweise unterkellert.
Aktuell ist das Objekt teilweise vermietet und teilweise leerstehend. Im Erdgeschoss befindet sich eine Gewerbeeinheit, welche aktuell vermietet ist und eine Wohneinheit die momentan leerstehend ist.
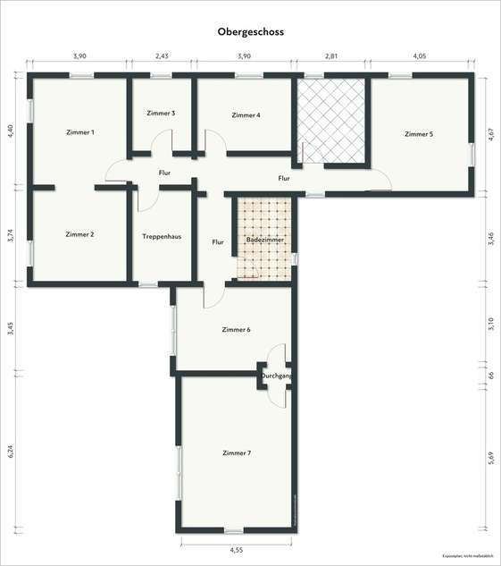
Über das Obergeschoss erstreckt eine große Wohneinheit mit über 150m² Wohnfläche. Diese ebenfalls leerstehend.
Dazu kommt dann noch die vermietete Dachgeschosswohnung.

Daten der einzelnen Einheiten im Überblick:
Ladengeschäft EG / 54m² / 200,00€ Mietertrag
Wohnung EG / 46m² / 0,00€ Mietertrag (Leerstehend)
Wohnung OG / 152m² / 0,00€ Mietertrag (Leerstehend)
Wohnung DG / 46m² / 220,00€ Mietertrag

Im Zuge der Renovierungsarbeiten und Neuvermietung könnten die Mieten gemäß Mietspiegel wie folgt entwickelt werden:
Ladengeschäft EG / 54m² / 200,00€ Mietertrag
Wohnung EG / 46m² / 192,00€ Mietertrag
Wohnung OG / 152m² / 805,00€ Mietertrag
Wohnung DG / 46m² / 263,00€ Mietertrag
Garage / 25,00€ Mietertrag
Jahresrohertrag: 17.820,00€

Bei der leerstehenden Wohneinheit im Erdgeschoss lässt sich das Badezimmer jedoch nur durch das Treppenhaus erreichen, wodurch keine vollständige Abgeschlossenheit gegeben ist und sich die Einheit daher eher zur Nutzung als weitere Gewerbeeinheit anbietet.

Beheizt wird das Haus durch eine zentrale Gas-Heizung aus 2001.

Neben den einzelnen Kellerräumen bieten auch mehrere Abstellräume im Erdgeschoss des Wohnhauses zusätzliche Stellfläche, die den einzelnen Einheiten zugewiesen werden können.

Ein Denkmalschutz besteht bei dem Gebäude nicht.

Duingen ist eine Gemeinde im Landkreis Hildesheim im südlichen Niedersachsen und gehört zur Samtgemeinde Leinebergland. Die Ortschaft liegt am Rand des Leineberglands und ist landschaftlich von sanften Hügeln, Wäldern und Feldern geprägt. Die nächstgrößeren Städte sind Alfeld (ca. 15 km nordöstlich) und Einbeck (ca. 25 km südwestlich). Die Landeshauptstadt Hannover liegt etwa 50 km nordöstlich und ist mit dem Auto in etwa einer Stunde erreichbar.

Duingen ist verkehrstechnisch gut angebunden:

Über die Bundesstraße B240, die durch den Ort führt, besteht eine direkte Anbindung in Richtung Alfeld und Eschershausen.

Die Bundesstraße B3 ist in wenigen Kilometern erreichbar und verbindet die Region mit Einbeck, Northeim und Hannover.

Die nächstgelegene Autobahnanschlussstelle ist etwa 25 km entfernt (A7 bei Seesen oder Bockenem).

Öffentliche Verkehrsmittel sind über Busverbindungen in Richtung Alfeld, Gronau und Delligsen verfügbar. Ein Bahnhof mit Anbindung an das regionale Schienennetz befindet sich im ca. 15 km entfernten Alfeld (Leine), mit Verbindungen nach Hannover und Göttingen.

Einkaufsmöglichkeiten sind im Ort vorhanden, darunter ein Supermarkt, Bäcker, Apotheke sowie kleinere Geschäfte für den täglichen Bedarf.

Bildungseinrichtungen: Duingen verfügt über eine Grundschule sowie eine Kindertagesstätte. Weiterführende Schulen befinden sich in Alfeld oder Gronau.

Freizeit und Kultur: Duingen bietet mit dem Duinger Wald, einem Freibad, Sportplätzen sowie einem aktiven Vereinsleben (z. B. Sport- und Schützenvereine) vielfältige Freizeitmöglichkeiten. Die Umgebung lädt zum Wandern und Radfahren ein.

Die wirtschaftliche Struktur ist geprägt von kleinen und mittelständischen Unternehmen aus Handwerk, Dienstleistungen und Handel. Historisch war Duingen ein Zentrum der Keramikindustrie, die noch heute in Form einiger Betriebe vertreten ist.

Hinweis: Alle Angaben basieren auf uns von dritter Seite überlassenen Unterlagen. Eine Gewährleistung für Richtigkeit und Vollständigkeit können wir nicht übernehmen. Zur Verfügung gestellte Grundrisse sind unter Umständen nicht maßstabsgerecht und dienen lediglich der Veranschaulichung.

Weitere interessante Immobilienangebote finden Sie auf unserer Internetseite www.ibfeldt.de!

IMMOBILIENBÜRO FELDT HANNOVER GMBH
Großer Hillen 26 / 30559 Hannover
Tel. 0511-8765060 / Fax 0511-87650629 / Mail hannover@ibfeldt.de / www.IBFeldt.de


Kontakt


Anfrage senden Drucken

Hr. Farin Gerlach
Tel. +49 511 8765060
Fax +49 511 16590499
Großer Hillen 26
30559 Hannover